Ground Floor House Plan with Kitchen and Living Hall Layout Design AutoCAD DWG
Description
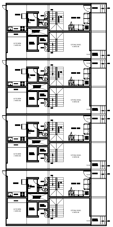
For the kitchen and living hall layout design here, a downloadable Ground Floor House Plan in AutoCAD DWG format is included. This is a professionally designed floor plan that would appeal to both homeowners and architects working on a functional yet warmly attractive living space. The room layout features an expansive living hall that opens directly into the kitchen. So airy open and fresh, this living and dining space was highly suitable for family gatherings or entertaining your guests. It is thoughtfully designed to conserve space while making accessibility, comfort, and spaciousness possible throughout. The DWG file is fully editable, so you can have the dimensions changed and room placement adjusted according to your specific needs for building your dream home or renovation. With this specific floor plan, regardless of what kind of house you want to have, it becomes an excellent resource that guides you in achieving it. Download now and start planning your dream ground floor layout.

Uploaded by:
Eiz
Luna

