13.3ft to 5.30ft Residential House Floor Plan Design AutoCAD DWG File
Description
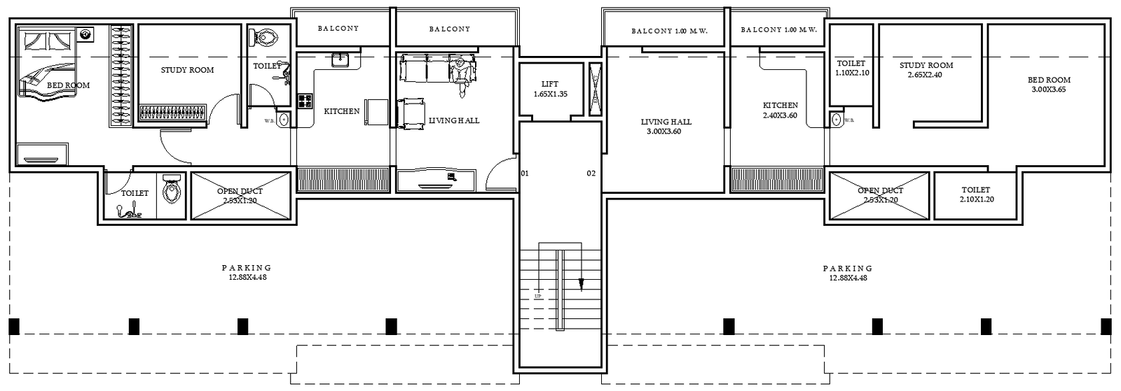
13.3ft to 5.30ft Residential House Floor Plan Design in AutoCAD DWG Download. This perfect floor plan is designed for homeowners, architects, and designers for an efficient layout for compact residential space with the design injecting basic living areas to optimize every square foot to give ultimate comfort and functionality. This is a simple family or individual house design with great details in demarcated spaces. It has a nice and small living room, kitchen, bathroom, and bedroom. The DWG file is fully customizable to allow you to adapt the design of the house to your specific needs and requirements. Whether it's a new construction of a home or a renovation, this resource is priceless. Download it now and start living your dream home today.

Uploaded by:
Eiz
Luna

