AutoCAD 47.5ftx17ft Simple House Plan with Elevation
Description
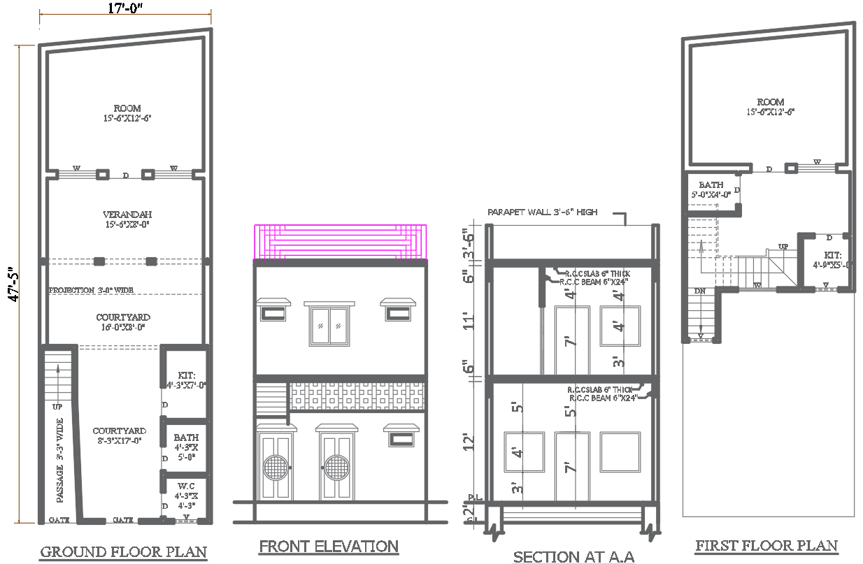
simple yet effective house design layout measuring 47.5ft by 17ft, with elevation and section details available as AutoCAD DWG. This detailed design features the proper development of both floor plans for the ground and first floors in design to utilize space effectively and for functionality. The design is purely modern. All of the spaces are distinctly divided for purposes like family gatherings, dining, or simply sitting or relaxing. Elevation details provided here are really given an aesthetic touch and would suit any architectural style. Absolutely perfect for architects, builders, and house owners, this is a customizable AutoCAD DWG file available according to your specific needs. Download now and make planning your dream house easy and precise.

Uploaded by:
Eiz
Luna

