40ftx12.6ft 2RK House Plan Layout Design in DWG File
Description
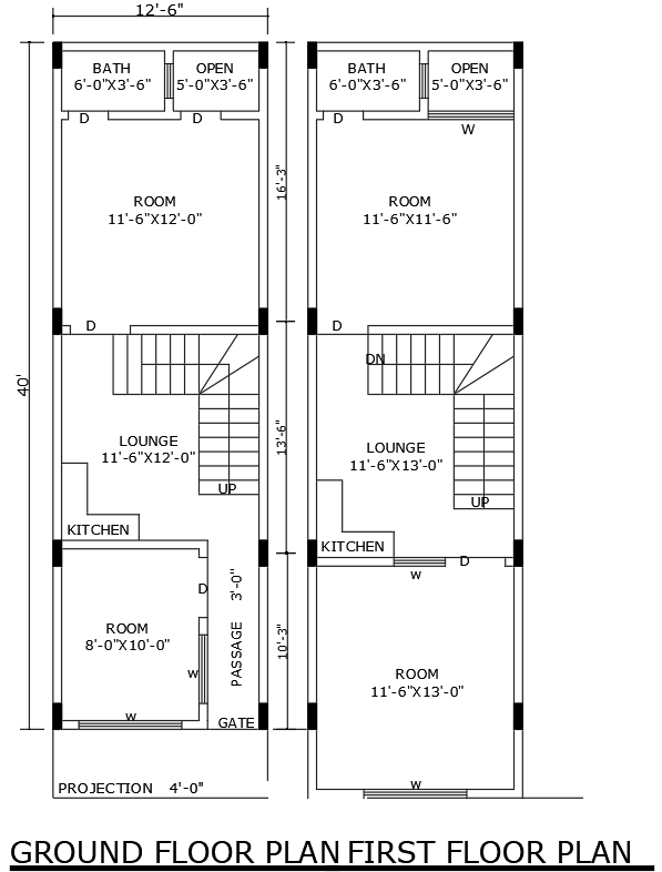
40 ft x 12.6 ft 2 RK house plan layout With an AutoCAD DWG file. Layout that encompasses full ground and first-floor plans to avoid any kind of wastage of space in the dwelling. The 2 RK design is basically the design for two rooms with a kitchen, most appropriate for a small family dwelling or compact projects of residential structures. This plan focuses on functionality and comfort, making it perfect for homeowners, architects, and builders who have a need to create a practical yet stylish home. This file comes in an AutoCAD DWG format, which is easily customizable with your needs, thus perfect for new builds or renovations. Download now and start planning your dream home.

Uploaded by:
Eiz
Luna

