4BHK AutoCAD Plan for 40ftx12.6ft Residential Layout
Description
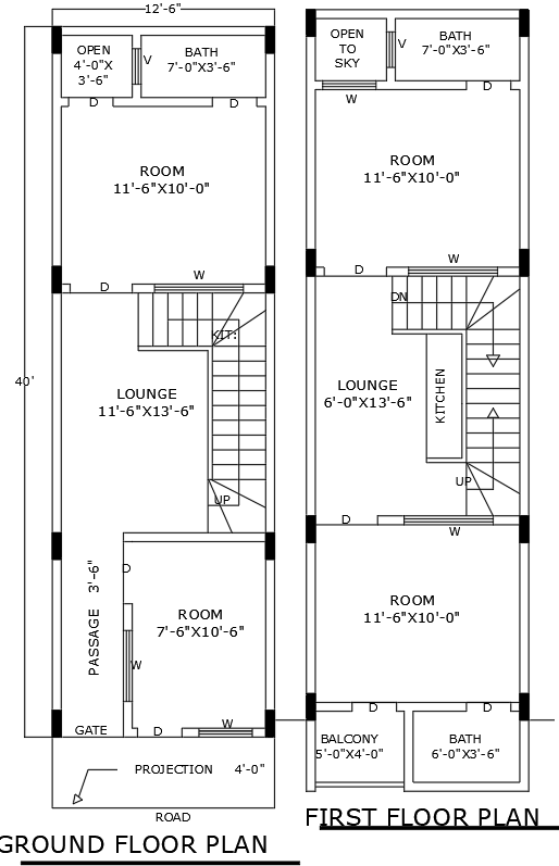
Explore this elegant 40ft x 12.6ft house plan layout consisting of a flexible 4BHK design for the modern living platform. From inside, you experience space maximization through an innovative layout that defines comfort and functionality at each corner. The plan comprises four bedrooms, a spacious living area, an elegantly equipped kitchen, and many bathrooms, all for a growing family. In keeping with efficient spacing and natural light utilization, this is a great house plan for those who want an attractive yet functional house. Download the AutoCAD DWG file today to start planning your dream home in plain ease and precision.

Uploaded by:
Eiz
Luna

