10.50ftx7.50ft 1BHK DWG House Plan with Floor Layout
Description
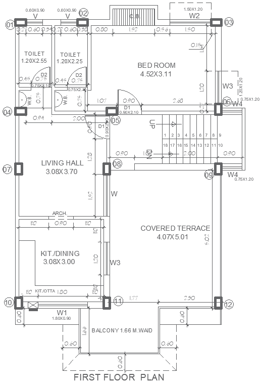
Discover the innovative 1 BHK house plan architecture design on 10.50ft x 7.50ft, available as an AutoCAD DWG file. Compact and practical in the layout, it means making complete use of every inch, featuring a cozy bedroom, a well-designed living room, and a modern kitchen. A perfect house design for individuals or couples who need efficient living solutions, balancing comfort and practicality. The DWG file contains accurate measurements with modifiable features fitting your requirements to ensure that it suits an architect, builder, or homeowner. Download today the detailed architectural plan and make your construction process easy, plus get a beautiful, efficient house suited to your lifestyle.

Uploaded by:
Eiz
Luna

