10.50ftx9ft 1BHK AutoCAD House Layout Plan in DWG File
Description
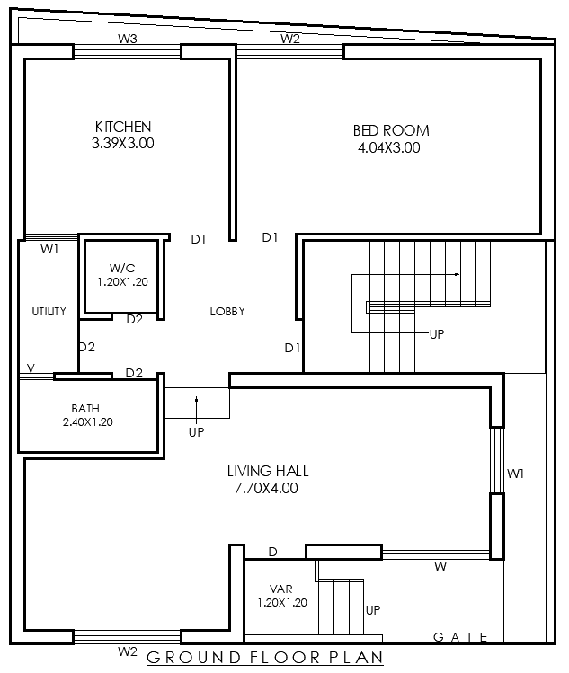
View the well-thought-out 10.50ft x 9ft 1BHK house plan. This 10.50ft x 9ft floor plan is right on the dot with your required ground floor layouts in this simple and efficient design. The design is available as an AutoCAD DWG file. This neat, efficient design features a warm lobby, spacious hall, sleek kitchen, cozy bedroom, and bathroom appointed for complete comfort in every moment of your daily life. The open sky area allows natural light with a fresh outside feel, which makes it ideal for small families or singles. It's perfect for architects, builders, and homeowners as this DWG file offers accurate measurements along with elements that you can customize depending on your requirements. Download this comprehensive architectural plan today and simplify your construction process to have a stylish, efficient home.

Uploaded by:
Eiz
Luna

