15ftx9.7ft Home Plan DWG File with Ground Floor Layout
Description
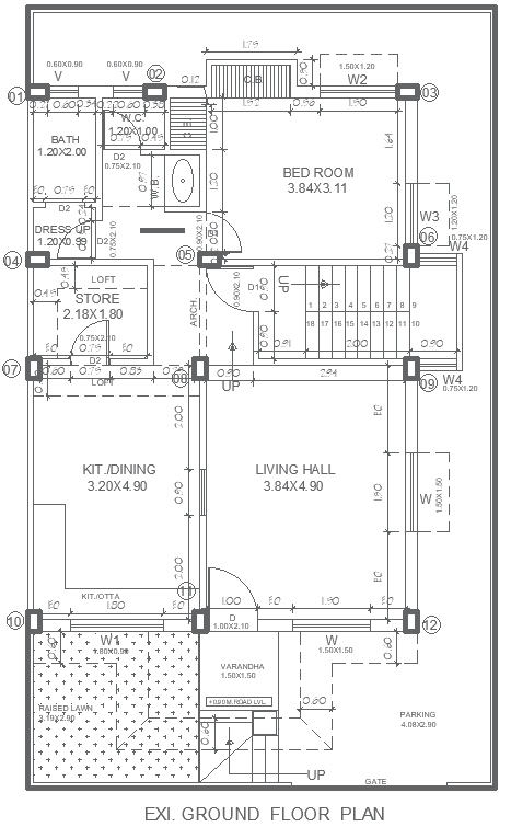
Discover the highly detailed 15ft x 9.7ft ground floor house layout plan design in AutoCAD DWG format. Designed to maximize comfort, with adequate bedroom space, spacious hall, functional kitchen, modern bathroom, and convenient store room, this house layout is perfect for a small family or person. Optimized for maximum utilization of space, the design ensures comfort for living. Perfect for architects, builders, and homeowners, this DWG file gives accurate measurements while offering you the flexibility to modify any of the elements according to your needs. Download this house layout plan to get construction streamlined and finally complete that stylish, practical dream home.

Uploaded by:
Eiz
Luna

