12ft×9ft Compact House Layout in DWG AutoCAD Design
Description
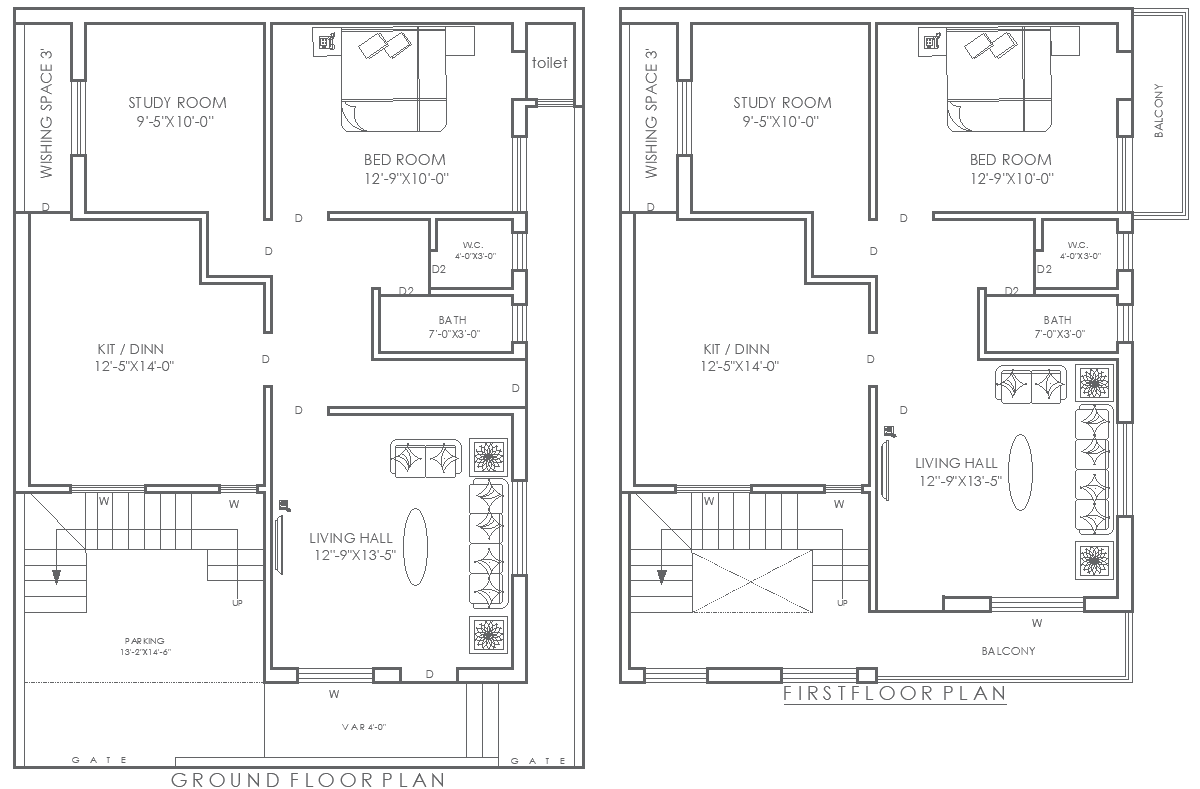
12FT x 9FT house plan layout. Available in an AutoCAD DWG file, this small, efficient design will fit a small family or an individual who wants to make a lot of space without losing out on comfort. The design contains useful areas: a cozy living room with acceptable space, a small kitchen functions to sit inside and dining with adequate space for a comfortable bed and the bathroom is located perfectly to assure practical surroundings. Using AutoCAD, you receive accurate measurements as well as customization options that may allow it to suit your specific needs. It is perfect for architects, builders, and homeowners who need to have an efficient way of constructing or designing their house. Download today this complete house plan to help facilitate your construction process and create a stylish home aligned with your lifestyle

Uploaded by:
Eiz
Luna

