60ft×30ft Residential Layout with Elevation in DWG File
Description
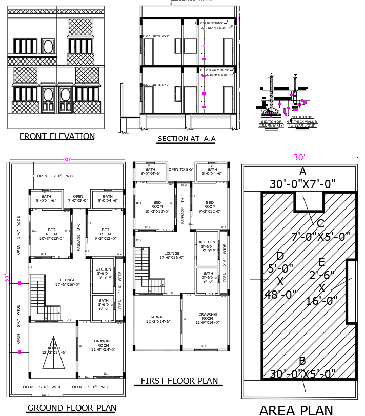
Residential House Plan with Elevation and Section Design in AutoCAD DWG format. 60ft x 30ft, suitable for architects and builders. The whole design contains elaborate ground and first-floor plans that include spacious halls, modern kitchens, cozy bedrooms, and well-equipped bathrooms. Interlocking an open sky area, there is also a spacious lounge for relaxation and a dedicated car parking space, just perfect for modern living. The plan contains elevation and section views that complete the architectural design solution. Available as a fully editable DWG, you can modify it as necessary for your needs. Download to improve your architectural plans.

Uploaded by:
Eiz
Luna

