11m×11m Small House Plan in AutoCAD DWG for Design Use
Description
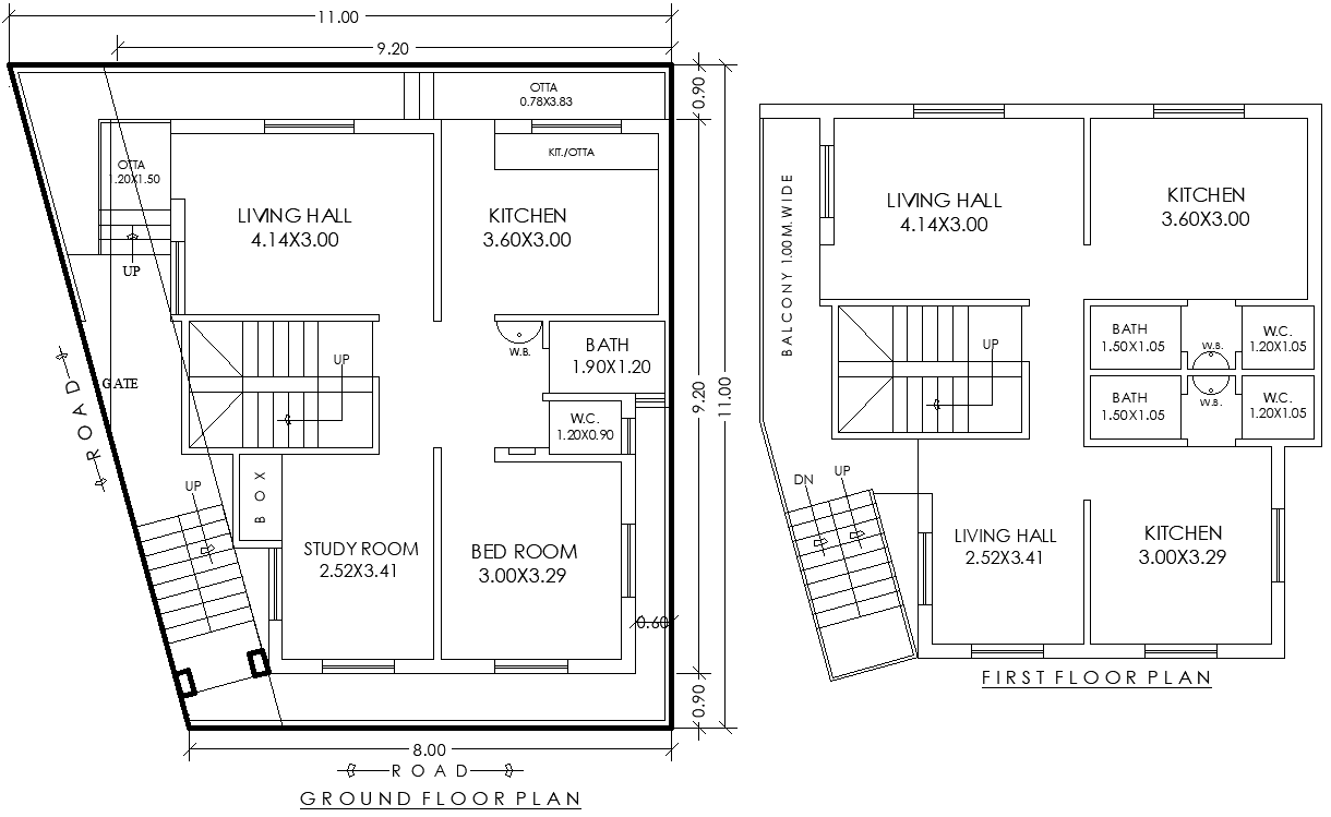
Discover here the ideal house plan design of 11m x 11m AutoCAD DWG to have excellent function and style in a small space, located in 1 BHK layout having an adorable living hall, efficient kitchen, well-oriented bathroom, and perfect study room. Practical in the use of space, this design is comfortable and yet very functional, suitable for a person or small family. Its detailed architectural plans make it ideal for architects, builders, and homeowners to create a beautiful living style. Download the free AutoCAD file today. Now turn your dream house into reality! This is going to be a lifetime living experience with this new small house design.

Uploaded by:
Eiz
Luna

