11m×11m Double Floor House Drawing in DWG for CAD Use
Description
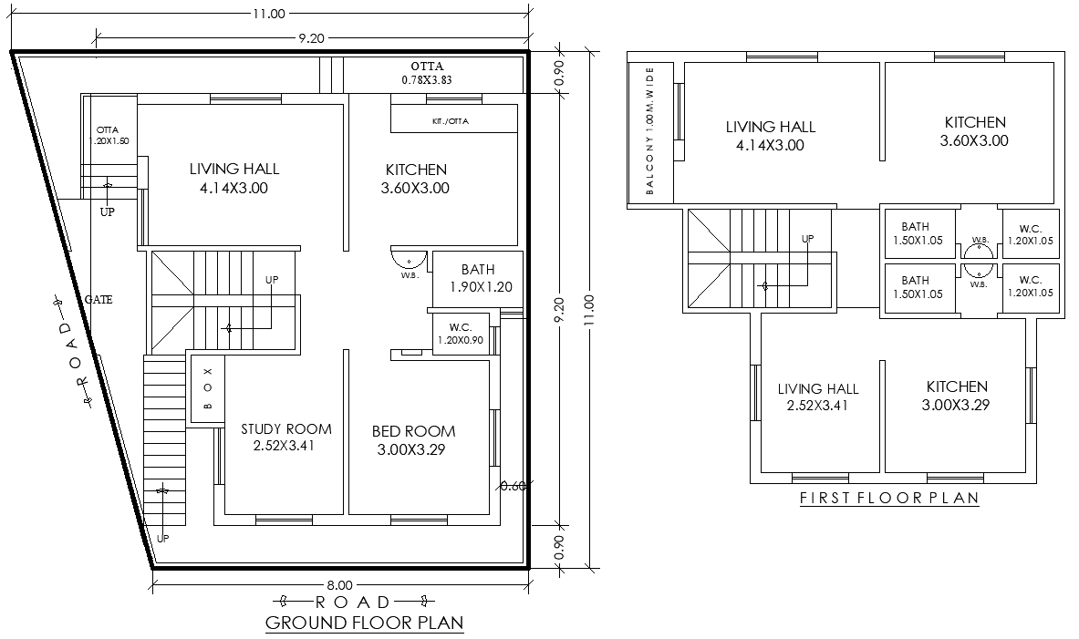
Find the detailed AutoCAD DWG file of an 11m x 11m residential house plan, providing perfect layouts for both ground and first floors. This master plan has included space for a spacious study room, a comfortable bedroom, a modern kitchen, and a hall ideal for your personal needs and perfect for family living. The layout on the ground floor has been optimized to be functional, and the first floor provides additional privacy and space. Ideal for architects, builders, and homeowners. It comes in the form of a DWG file whose measurements and specifications are precise enough to ensure total smoothness during the design and construction processes. Download now and breathe life into your dream home in this most carefully crafted house plan combining style with convenience

Uploaded by:
Eiz
Luna

