AutoCAD 46ft×29ft Residential Two-Floor Layout Plan
Description
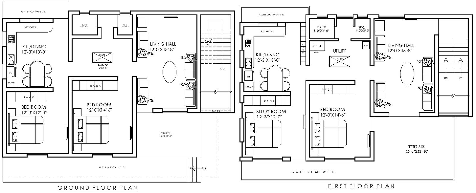
Explore the detailing of a full AutoCAD DWG file for the attractive house plan design residential of 46ft x 29ft. A perfect floor plan with various essential spaces, modern living, has space for an expansive dining space and a very efficient kitchen ideal for family gatherings or culinary adventures. This plan is comfortable enough for a living hall, two bedrooms, a stylish bathroom, and a versatile study room-all perfectly suited for work or relaxation. A lovely, outdoor view moments, and open space for washing-what else would one need? Such a carefully planned first and ground floor presents functionality and aesthetics in a proper combination and is an apt choice for comfort-loving families who look for style in a new dream house. Download now.

Uploaded by:
Eiz
Luna

