36.2ft×30.5ft 3 Floor House Plan with Terrace in DWG Design
Description
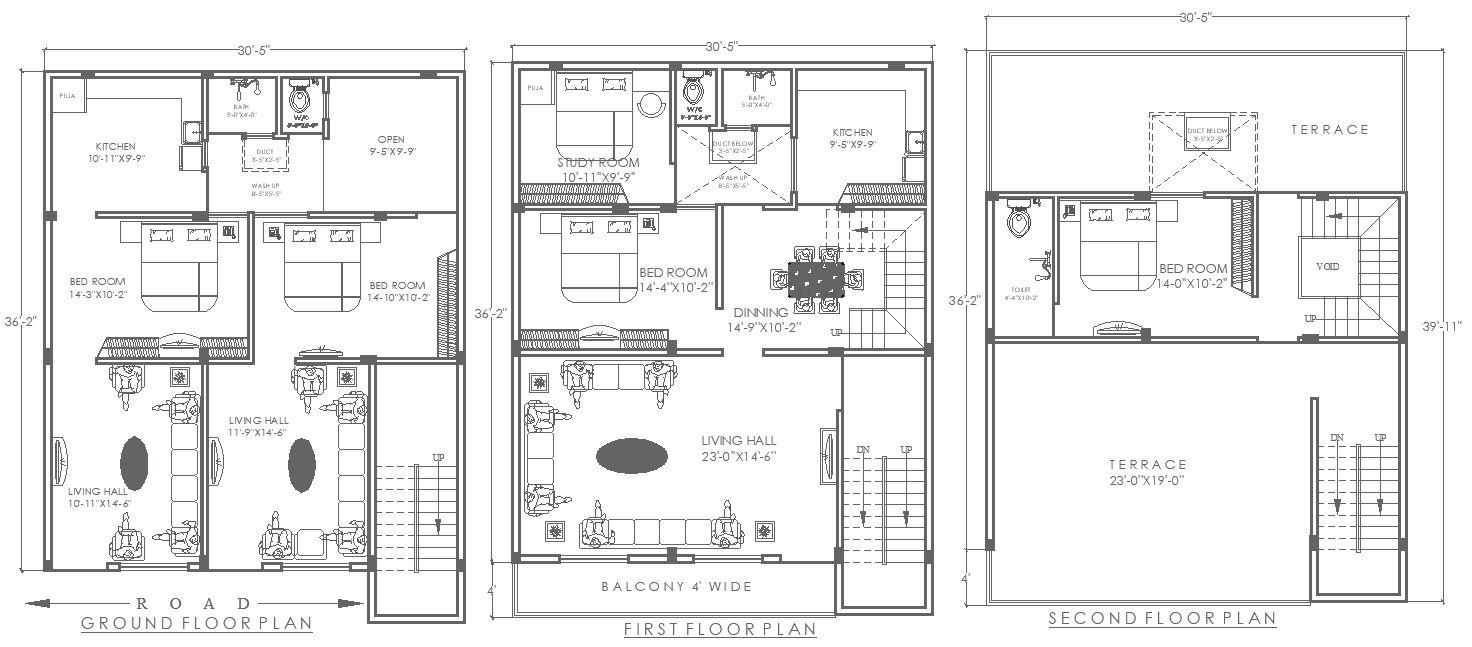
Discover the perfect mix of functionality and style in our carefully designed 36.2ft x 30.5ft 3 floor house plan with a spacious terrace. This AutoCAD DWG file provides you with a balanced layout of a compact bedroom, a dining area that's perfect for family bonding, and a welcoming living hall. The well-placed washrooms on every floor guarantee your privacy and comfort. The lovely abode flows from a spacious living room to a wide balcony that invites the homeowner to indulge in open sky views. This house plan is ideal for families who intend to maintain harmonious activities between indoors and outdoors. Let this particular design bring your dream home into reality. Download now.

Uploaded by:
Eiz
Luna

