AutoCAD DWG Plan of 17m×14m × 14 m Two-Floor House with Shop
Description
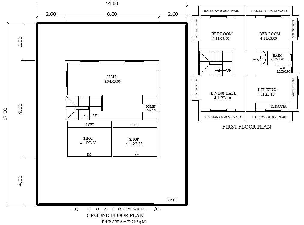
Explore this beautifully designed 17m x 14m 2 floor house and shop with the layout available in an AutoCAD DWG file. This house plan is very versatile and brings together residential and commercial spaces combined with the shop area, having a neat and well-structured shop on the ground floor accompanied by a large living hall suitable for welcoming guests. The second floor comprises a cozy bedroom, a dining area meant for family meals, and a relaxing balcony for leisure. Another feature of this house is a well-designed washroom for easy convenience and comfort. This house design will completely suit an ideal client who is looking to achieve a useful mix of work with living life. The provided detailed AutoCAD file could come in very handy for architects, builders, or homeowners. Download now and begin planning your dream space.

Uploaded by:
Eiz
Luna

