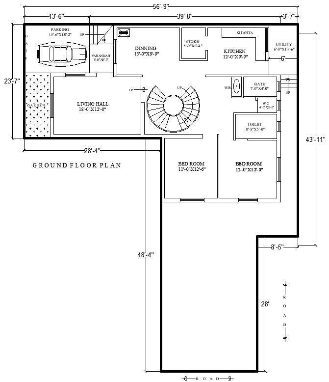
2BHK 56.9ftx43.11ft Ground Floor House Plan in DWG File
Description
Explore this well-designed 2BHK ground floor house plan with dimensions 56.9ft x 43.11ft, designed in AutoCAD DWG. This long layout consists of two smaller bedrooms, family gathering place for dining along with parties, a well-furnished kitchen with comfort-enhancing bathroom facilities. There are store room facilities included to further help with parking area for better access. Another washroom has also been included to make it convenient for visitors. Ideal for modern living, this design is the perfect balance of functionality and style - perfect for families or individuals looking for a practical yet stylish living space. Download the AutoCAD DWG file to visualize and personalize this beautiful 2BHK home design according to your tastes and lifestyle requirements. Bring your dream of owning the perfect home to life with this thoughtful layout.

Uploaded by:
Eiz
Luna

