Ground and First Floor Temple Hall Layout Design AutoCAD DWG File
Description
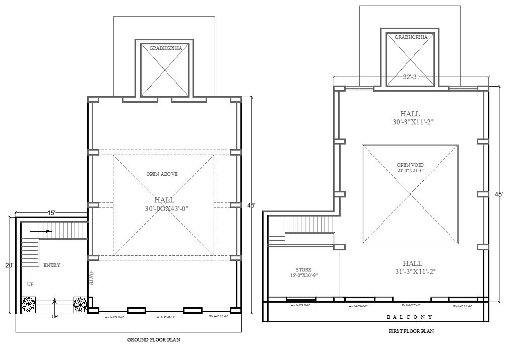
Discover our detailed Ground and First Floor Temple Hall Layout Design in AutoCAD DWG format, perfect for architects and designers. This design provides a spacious hall to accommodate gatherings and ceremonies up to worship. There is a specifically allocated area for stores; the processing can be smooth with easy supplies access. The balcony provides an elevated view and therefore makes for quite an impressive view for the guests. Detailed dimensions and annotations ensure an excellent implementation of this DWG file in your projects. Be it a new temple design or renovations, this layout will give you a great start. Download now and bring your versatility in design to life.

Uploaded by:
Eiz
Luna

