AutoCAD DWG of 20'x36' House Plan with Full Detailing
Description
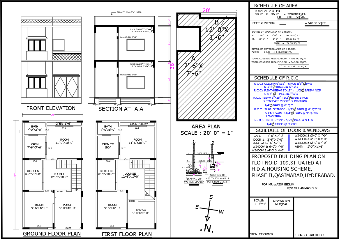
Discover this meticulously designed 20' x 36' Ground and First-Floor House Plan available in AutoCAD DWG format, perfect for families seeking a spacious and functional layout. This set of architectural drawings includes front side elevations, detailed sections, and all necessary structural details for a seamless construction process.
Key Features:
4 Rooms with Attached Bathrooms: Each room is thoughtfully designed with its own attached bathroom, ensuring privacy and comfort for all residents.
2 Kitchens: Efficiently planned kitchens provide ample space for cooking and meal preparation, catering to your culinary needs.
2 Lounges: Generous lounge areas on both floors create versatile spaces for relaxation and family gatherings.
Terrace: An inviting terrace area for outdoor enjoyment and leisure activities.
2 Open Sky Areas: Open sky designs allow natural light and ventilation to enhance the living environment.
Area Plan and Structural Details: Comprehensive area plans and structural drawings are included, ensuring precision and clarity in construction.
This house plan is an excellent choice for those seeking modern design with practical living spaces, all documented in easy-to-use AutoCAD DWG files.

Uploaded by:
Eiz
Luna

