15m×12m AutoCAD Drawing with 3 Ground Floor Plan Idea

15m×12m AutoCAD Drawing with 3 Ground Floor Plan Idea
Profile

Uploaded by:

Eiz

Luna

Description
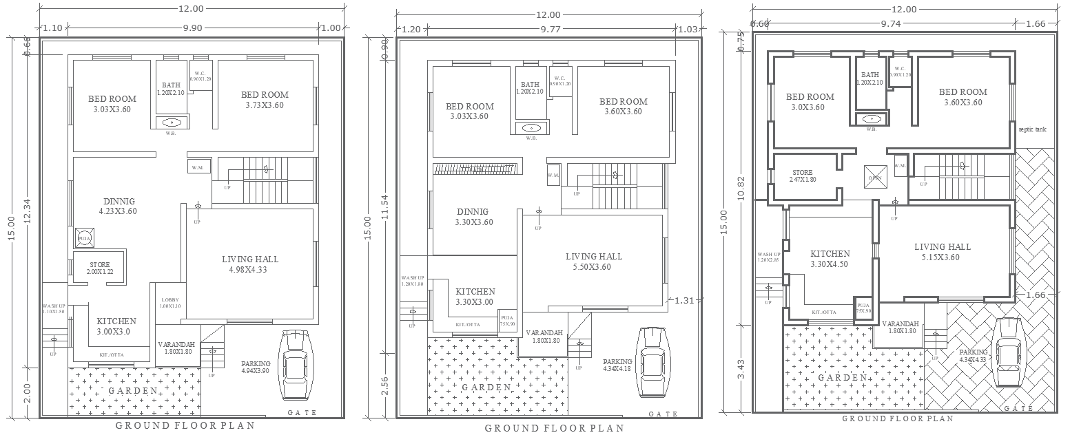
This AutoCAD DWG file provides three different ground floor house plan designs for a 15m x 12m plot, featuring essential spaces like a hall, kitchen, bedroom, bathroom, lobby, garden, and store. These designs are perfect for architects, builders, and homeowners who are looking for versatile layout options for a residential project. The detailed drawings ensure accurate planning and execution, optimizing space utilization while maintaining functional flow in the house. Download this DWG file to streamline your architectural design process.
Profile

Uploaded by:

Eiz

Luna

find Latest

Related Files

WhatsApp Chat