19mx28m 2 Different House Plans with Shop AutoCAD DWG File
Description
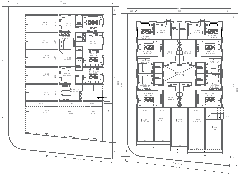
This AutoCAD DWG file offers two distinct house plan designs for a 19m x 28m layout, each with an integrated shop plan. Both house plans feature essential spaces like bedrooms, bathrooms, kitchens, living halls, and an open sky area, making them perfect for residential projects with commercial potential. Ideal for architects, builders, and homeowners, these plans provide functional living spaces alongside convenient shop layouts. The file includes detailed measurements and layouts, ensuring efficient space planning and construction. Download this versatile DWG file to streamline your design and build process.

Uploaded by:
Eiz
Luna

