28m x 13.50m 1 BHK House Plan with Site and Section Plan Details AutoCAD DWG File
Description
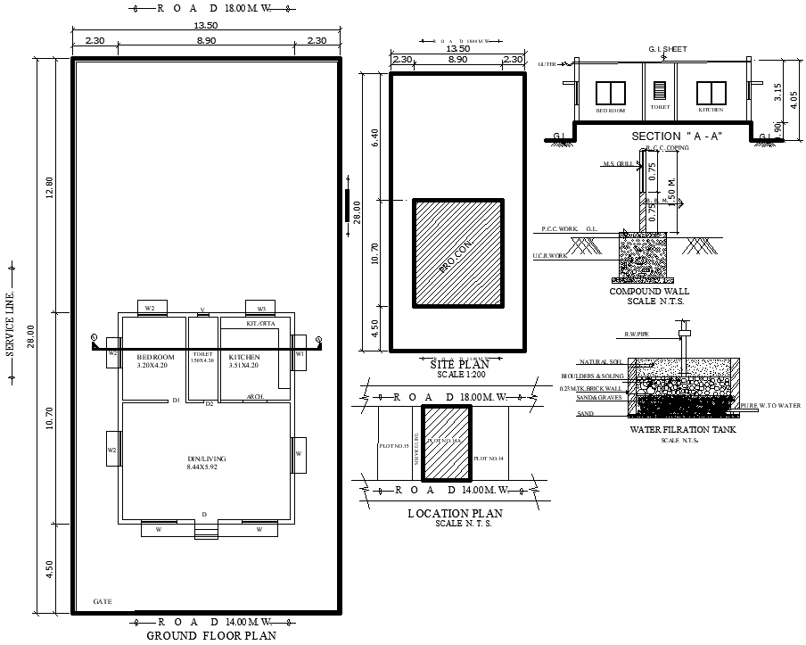
Explore the 28m x 13.50m 1 BHK house plan in AutoCAD DWG format, a meticulously designed architectural solution tailored for modern living. This comprehensive file features essential spaces, including a well-appointed kitchen, a cozy living hall, a functional washroom, and a dedicated dining area, ensuring comfort and convenience. Additionally, the plan incorporates a sturdy compound wall for enhanced privacy and security. To further streamline your construction process, this detailed file also includes a site plan and a location plan, along with a designated space for a water filtration tank, making it a complete residential design solution for those seeking a harmonious blend of functionality and style.

Uploaded by:
Eiz
Luna

