12.19mx15.24m House Plan DWG with Section and Location
Description
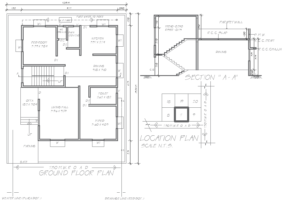
This AutoCAD DWG file provides a comprehensive ground floor plan measuring 12.19m x 15.24m. It includes a 2-bedroom layout with attached bathrooms, a kitchen, a dining area, a living hall, and a parking space. Additionally, the file features sectional details and a location plan to offer a detailed visualization. Ideal for architects, designers, and construction professionals, this file delivers precise dimensions and design elements for a practical residential layout. Download this DWG file to get a detailed architectural drawing for your next project.

Uploaded by:
Eiz
Luna

