19m x 10.82m Multi-Ground Floor House Plan AUTOCAD DWG File
Description
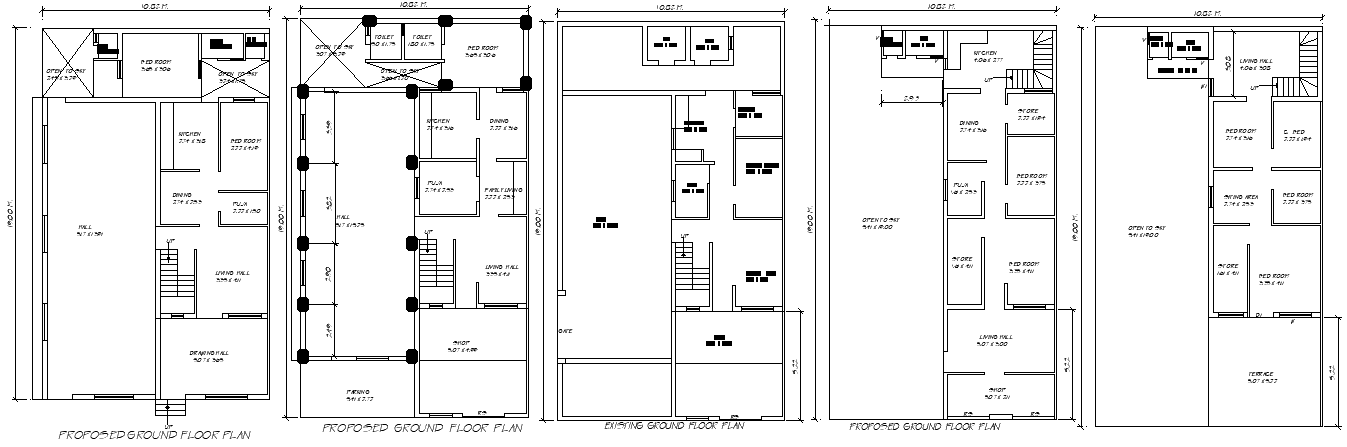
This 19m x 10.82m multi-ground floor house plan AutoCAD DWG file offers a comprehensive layout, featuring 9 bedrooms with attached washrooms, 4 kitchens, and spacious dining and living areas. The design also includes a puja room, an open sky area, a shop, and ample parking space. Additional amenities like a balcony, sitting area, store room, and terrace make this a complete residential and commercial plan. Ideal for large families or mixed-use purposes, this DWG file provides accurate 2D drawings with every detail clearly illustrated for architects, designers, and builders.

Uploaded by:
Eiz
Luna

