30ft x 64.5ft 3 BHK House Plan with Multi-Floor Plan Layout - Autocad DWG File
Description
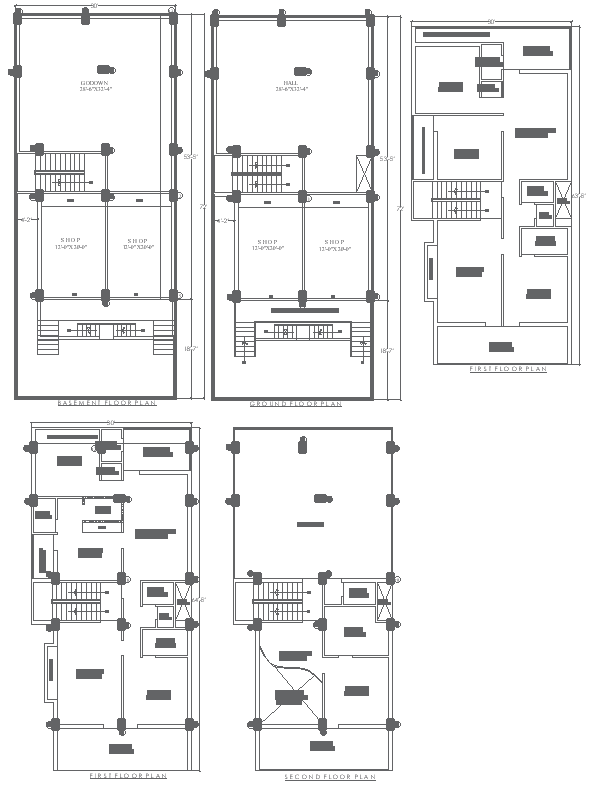
Explore a comprehensive 30ft x 64.5ft 3 BHK house plan featuring a multi-floor layout, designed with functionality and space optimization. This AutoCAD DWG file includes a godown, 4 shops, spacious bedrooms with attached bathrooms, a locker room, a modern kitchen, and a dining area connected to a large living hall. Additionally, the plan offers a balcony, terrace, store room, and a dedicated puja room. Ideal for residential and small business spaces, this design combines comfort and practicality. Download now for a detailed look at all the essential components of this versatile property.

Uploaded by:
Eiz
Luna

