DWG Layout 15ftx12ft Mixed-Use House with Shop Design
Description
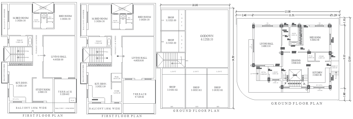
Discover a comprehensive 15ft x 12ft ground and first-floor house plan in AutoCAD DWG format, designed for both residential and commercial use. This detailed plan includes 6 rooms with attached bathrooms, 3 spacious living halls, and 3 well-planned kitchens, providing ample space for functional living. The design also features multiple balconies and terraces, offering outdoor relaxation areas, as well as a shop and a godown, making it suitable for business or storage needs. Ideal for families seeking a versatile home layout or entrepreneurs looking for a mixed-use property, this DWG file offers full flexibility for customization and easy implementation.

Uploaded by:
Eiz
Luna

