27x71 ft Multi Level Commercial Building Floor Plan DWG File
Description
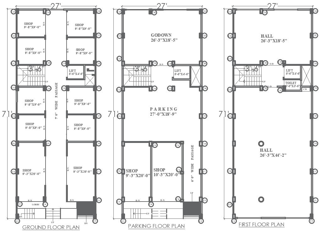
This AutoCAD DWG file features a detailed multi level commercial building floor plan developed on a 27 ft wide and 71 ft long plot. The drawing includes three clearly defined layouts covering the ground floor, parking floor, and first floor. The ground floor plan is designed with multiple shop units arranged on both sides of a central 7 ft wide passage, providing efficient pedestrian movement and clear access to individual shops. Each shop unit is properly dimensioned, making the layout suitable for retail and commercial usage. The parking floor plan includes a dedicated vehicle parking area with a clearly marked circulation zone, along with shop spaces positioned at the front for commercial visibility. A godown area is also included, offering functional storage support. The first floor plan features large hall spaces with defined dimensions, suitable for commercial halls, offices, or multipurpose use. Staircases, lift positions, toilets, and structural wall layouts are accurately indicated across all floors. This DWG drawing is ideal for architects, civil engineers, interior designers, and builders seeking a ready reference for planning and developing long plot commercial buildings with shops, parking, and hall spaces.

Uploaded by:
Eiz
Luna

