19.3ftx46.11ft Ground and First Floor House DWG Plan
Description
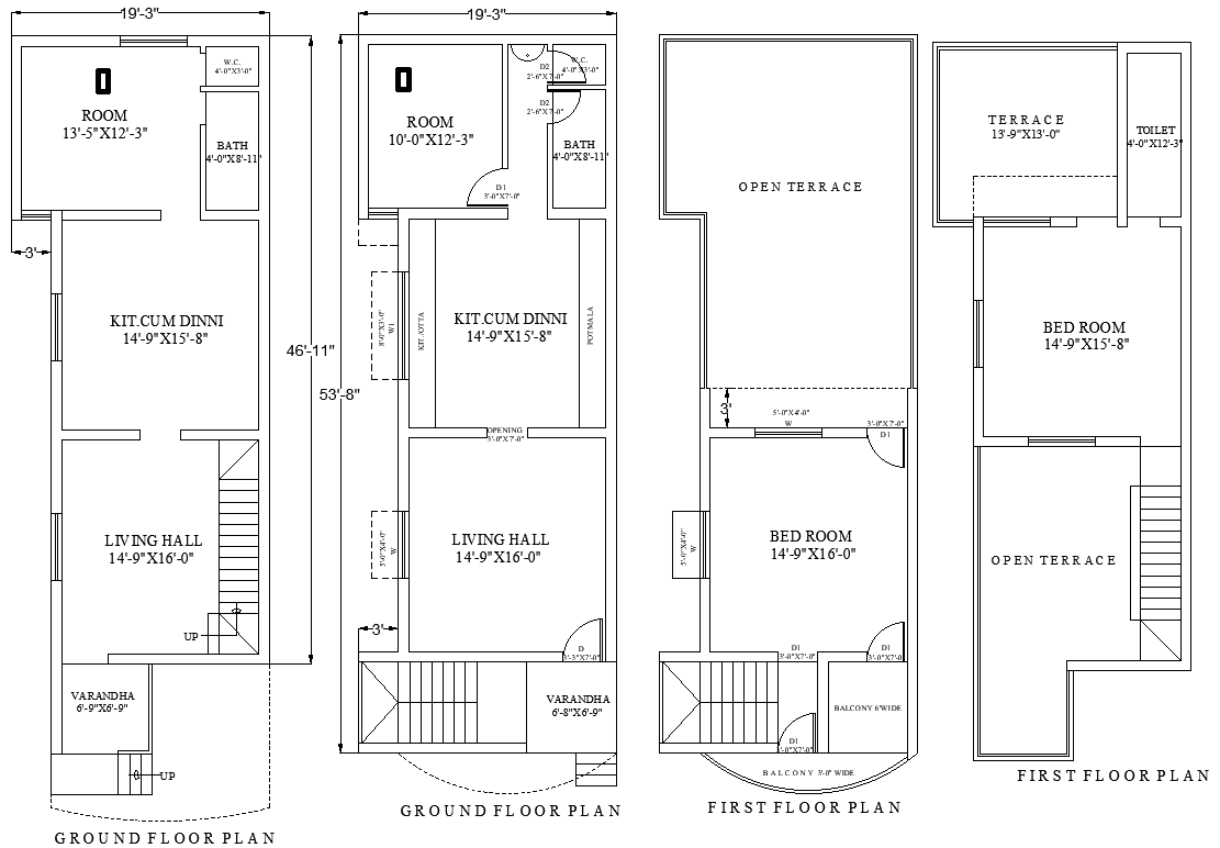
This AutoCAD DWG file features a simple yet efficient house plan for a 19.3ft x 46.11ft area, including both ground and first floors. The design covers essential elements such as rooms, a hall, a kitchen, a bathroom, an open terrace, a balcony, and a veranda, making it ideal for small residential spaces. The layout is thoughtfully designed to optimize space, ensuring comfort and functionality in a compact footprint. Whether you're planning a new home or need inspiration for a remodeling project, this plan offers a clear and detailed guide to assist architects, designers, and homeowners alike. Download the AutoCAD DWG file today to get started.

Uploaded by:
Eiz
Luna

