51ft x 43.3ft Two Floor House Plan Layout With Shop Plan Layout - AutoCAD DWG File
Description
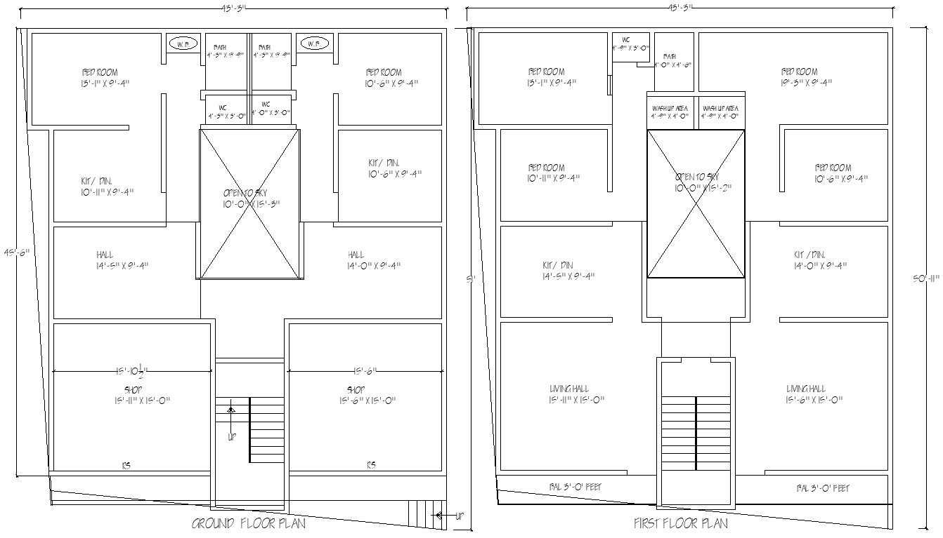
This AutoCAD DWG file offers a detailed two-floor house and shop plan layout for a 51ft x 43.3ft space. The design includes essential features such as a spacious living hall, modern kitchen, bathrooms, and six comfortable bedrooms, making it ideal for family living. The layout also incorporates a balcony for outdoor enjoyment and an open sky area that promotes natural light and ventilation. This versatile design is perfect for those seeking a harmonious blend of residential and commercial spaces. Architects, builders, and homeowners will find this comprehensive plan valuable for construction and renovation projects. Download the AutoCAD DWG file today to bring your architectural dreams to life.

Uploaded by:
Eiz
Luna

