73ft x 30ft Ground Floor Hospital Layout and First Floor 3BHK House Plan - AutoCAD DWG File
Description
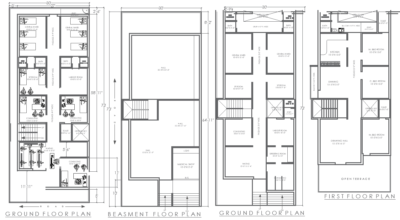
This AutoCAD DWG file offers a dual-purpose design featuring a 73ft x 30ft ground-floor hospital layout and a first-floor 3BHK house plan. The hospital layout includes essential spaces like a general ward, special room, labor room, consulting room, waiting area, medical shop, dressing room, and bathrooms, ensuring efficient patient care and medical services. The first-floor 3BHK house plan features a spacious hall, bedrooms, kitchen, and an open sky area for natural light. This layout is ideal for architects, builders, and medical professionals looking for a well-integrated design. Download the AutoCAD DWG file today to streamline your healthcare and residential projects.

Uploaded by:
Eiz
Luna

