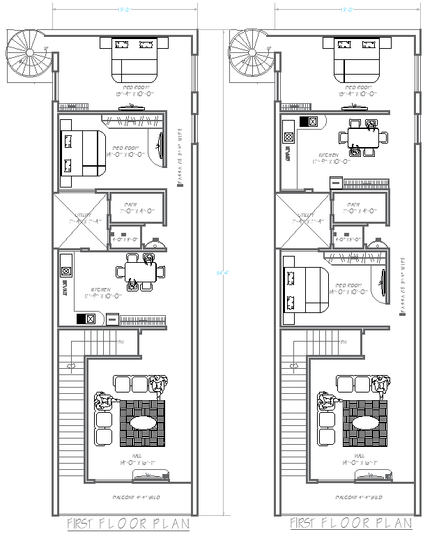
2BHK First Floor Designs 19.3ftx64.4ft in DWG File
Description
This AutoCAD DWG file contains two different 2BHK house plans designed for a 19.3ft x 64.4ft first floor layout. Both plans feature two bedrooms, a spacious living hall, a modern kitchen, and a bathroom, offering an ideal setup for small families. The designs also include an open sky area to enhance ventilation and bring in natural light, providing a bright and airy atmosphere. These versatile and functional layouts are suitable for architects, builders, or homeowners looking for practical and comfortable residential spaces. Download the AutoCAD DWG file today to explore these two unique 2BHK house plans and start planning your project.

Uploaded by:
Eiz
Luna

