9.13mx8.82m Office and Classroom Floor Plan in DWG File
Description
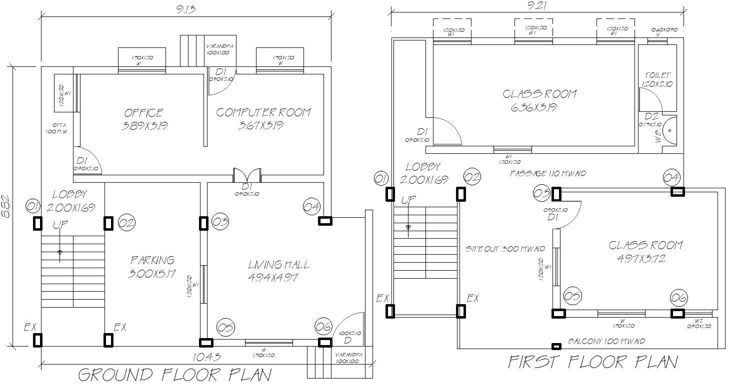
Explore a detailed ground and first floor layout plan with office, parking, and classrooms designed in a 9.13m x 8.82m space. This AutoCAD DWG file provides precise measurements and a comprehensive layout, perfect for architects, contractors, and designers working on educational or commercial projects. The ground floor includes an office, parking space, living hall, and lobby, while the first floor features multiple classrooms, a passage, and restrooms. This layout plan offers flexibility and efficient use of space, making it ideal for small institutions or commercial buildings. Easily customizable and available in DWG format, this file will streamline your planning and design process.

Uploaded by:
Eiz
Luna

