AutoCAD Drawing 7.5mx15.86m House Shop Combo Design
Description
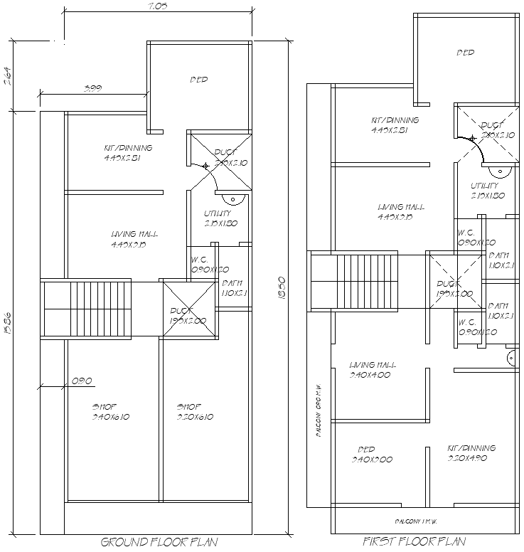
Explore this detailed 7.5m x 15.86m ground and first-floor house plan available in DWG AutoCAD file format. The design features 3 spacious bedrooms, each with a washroom, ensuring privacy and convenience. It includes 3 living halls, a well-organized kitchen with a dining area, and a balcony for relaxation. Additionally, the plan integrates 2 shops on the ground floor, offering a great opportunity for residential and commercial use. Whether for home design or architectural projects, this detailed CAD drawing provides a comprehensive layout for modern living and business space.

Uploaded by:
Eiz
Luna

