12.64mx11.38m Residential House Plan in DWG Layout File
Description
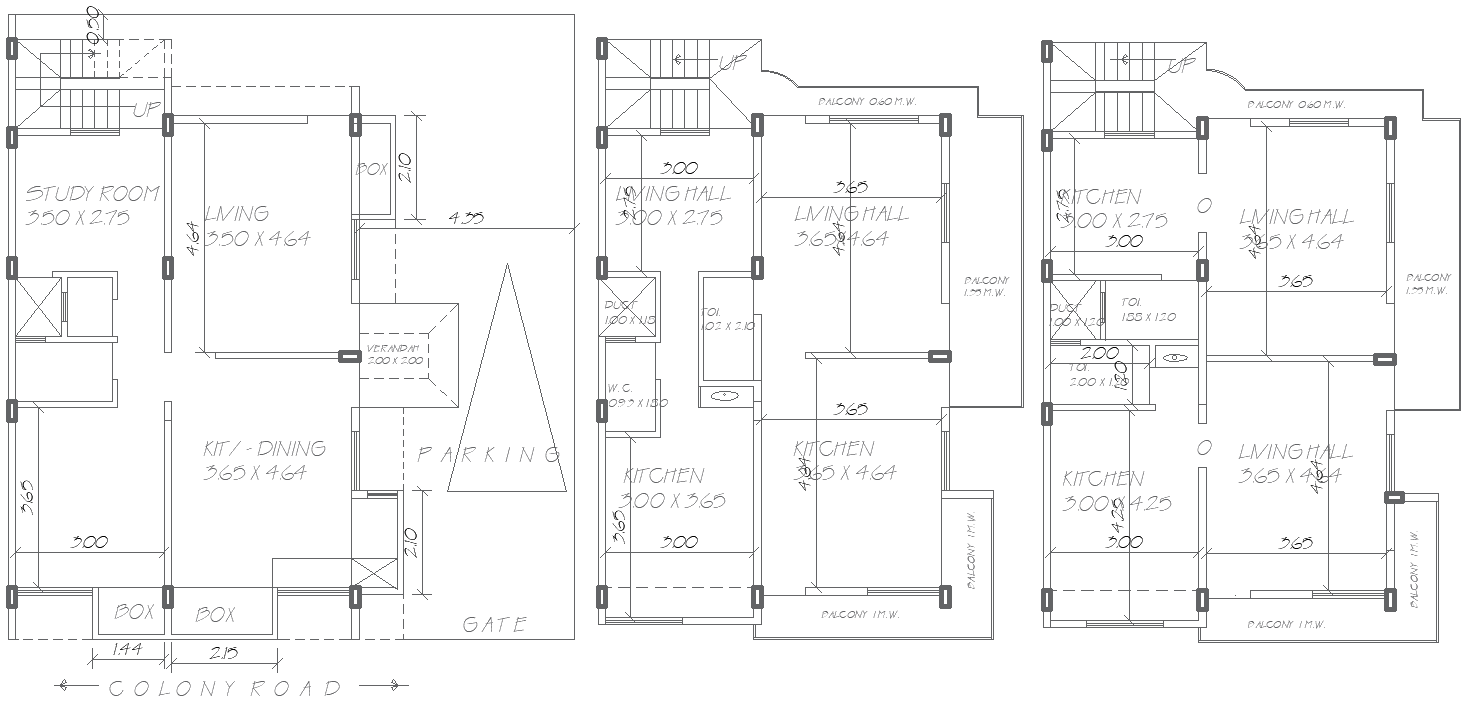
Download this comprehensive 12.64m x 11.38m house plan DWG file, perfect for large homes. This detailed plan features 5 spacious kitchens, 5 comfortable living halls, 1 study room with an attached bathroom, and ample parking space. Whether you're designing a multi-family residence or a luxurious large house, this AutoCAD file offers all the key elements for a functional and well-planned layout. The DWG file is easily editable and provides a clear structure to visualize the space efficiently, making it ideal for architects, designers, and homeowners seeking inspiration for their next big project.

Uploaded by:
Eiz
Luna

