12.4mx17.25m DWG House Plan with Two Unique Floor Levels
Description
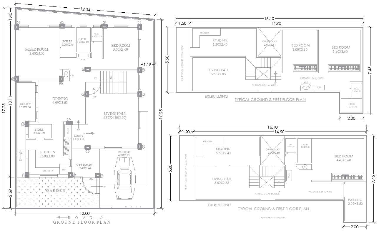
Download a detailed 12.4m x 17.25m house plan with separate ground and first floor layouts in AutoCAD DWG format. This file includes a 5-bedroom design with spacious living areas like a hall, kitchen, bathrooms, and a store room. The layout also features a garden, parking space, and open sky areas, making it ideal for a comfortable family home with ample space for relaxation and functionality. The plan is perfect for architects, builders, and homeowners seeking a modern design with efficient space utilization. Fully customizable, the DWG file offers precise measurements, making it easy to adapt to specific project requirements. This layout is well-suited for both new constructions and renovations.

Uploaded by:
Eiz
Luna

