24.59mx10.72m Multi-Level Residential Plan in DWG Format
Description
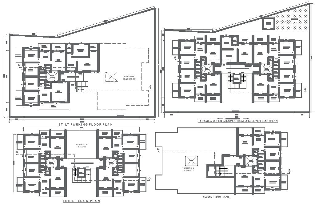
Explore the intricacies of a 24.59m x 10.72m multi-level floor house plan layout with this comprehensive AutoCAD DWG file. This design features essential living spaces, including a spacious living hall, a modern kitchen, a study room, and well-planned bathrooms. The layout also includes parking facilities for convenience and an open sky design that enhances natural light and ventilation throughout the home. With balcony access from the upper levels, this house plan promotes an enjoyable outdoor experience. Ideal for architects, builders, and homeowners looking to create a functional and stylish living space, this DWG file provides precise measurements and detailed plans for multi-level construction.

Uploaded by:
Eiz
Luna

