25ftx50ft AutoCAD House Design with Two Floor 2BHK Plan
Description
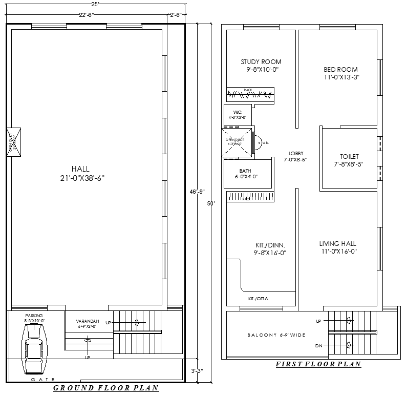
This 25ft x 50ft ground and first-floor house plan features a spacious 2BHK layout designed for modern living. Available in AutoCAD DWG format, the design includes a living hall, kitchen, bathroom, bedrooms, and lobby, along with car parking, a balcony, and open sky space for natural light. Ideal for architects, designers, and homeowners, this detailed layout offers functionality and comfort, making it suitable for both small families and couples. The DWG file provides an easy-to-customize floor plan, allowing flexibility in the arrangement of spaces while ensuring a harmonious flow throughout the home.

Uploaded by:
Eiz
Luna

