20ftx36ft 3BHK AutoCAD Floor Plan with Two-Level Design
Description
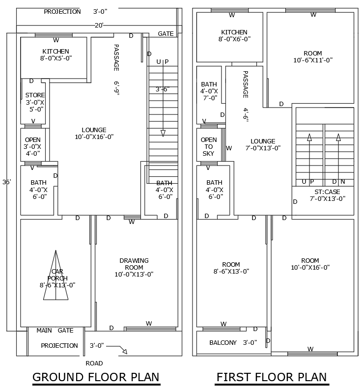
This 20ft x 36ft 3BHK house plan offers a comprehensive design for both the ground and first floors, meticulously created in AutoCAD DWG format. The layout features three bedrooms, bathrooms, a kitchen, and a living room, with an open-to-sky area enhancing natural light and ventilation. Additionally, the design includes a store, balcony, lounge, and parking area for added convenience. This plan is perfect for families seeking a practical, spacious, and modern living environment. The AutoCAD file provides all essential details, making it easy to customize and adapt the design to meet specific needs.

Uploaded by:
Eiz
Luna

