54mx67.7m Modern 4BHK House Plan Design in AutoCAD DWG File
Description
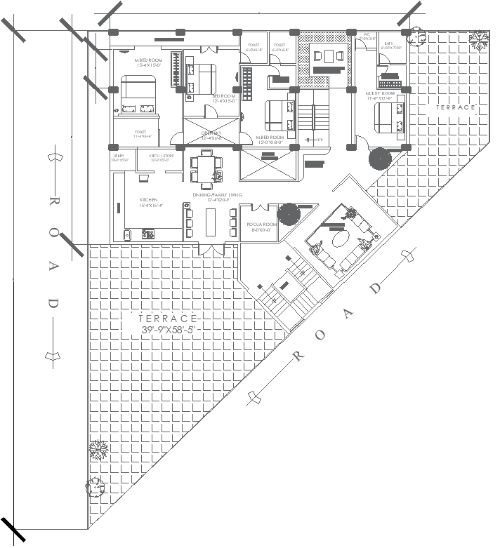
Discover a stunning 54m x 67.7m modern house plan designed for luxurious living, featuring a spacious 4BHK layout. This AutoCAD DWG file includes detailed designs for four elegant bedrooms, a bright living hall, and a functional kitchen. The plan emphasizes open spaces, incorporating an open-to-sky area and a terrace garden, perfect for relaxation and outdoor activities. Additional highlights include a dedicated pooja room, utility space, dining area, and a stylish balcony. With a lift for convenience, this home is thoughtfully designed to cater to contemporary lifestyles while offering ample storage and functionality throughout.

Uploaded by:
Eiz
Luna

