22ftx41ft Ground Floor House Plan with Shop in DWG File
Description
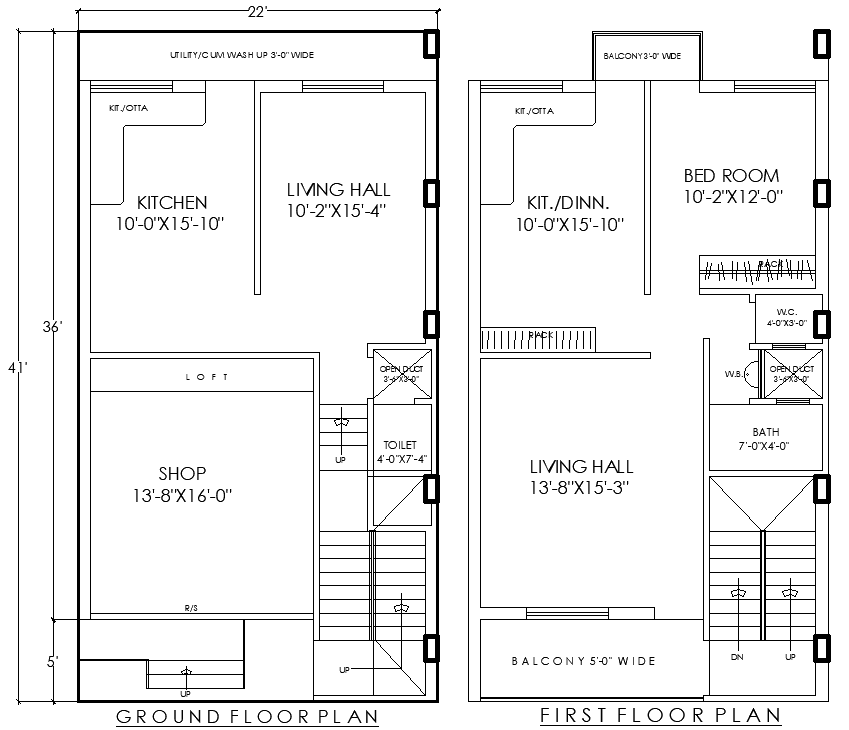
Discover a comprehensive 22ft x 41ft ground and first-floor house plan that includes a shop layout, available in AutoCAD DWG format. This versatile design integrates residential and commercial spaces, featuring a spacious living hall, kitchen, bathroom, bedrooms, balcony, and an open-to-sky area. Perfect for families who require both a comfortable living space and a functional shop area, this plan ensures optimal use of space and flow. The AutoCAD file provides precise measurements and layout details, making it ideal for architects, builders, and homeowners aiming for a practical and modern design solution.

Uploaded by:
Eiz
Luna

