9.1x12.5m Ground and First Floor House Plan DWG File
Description
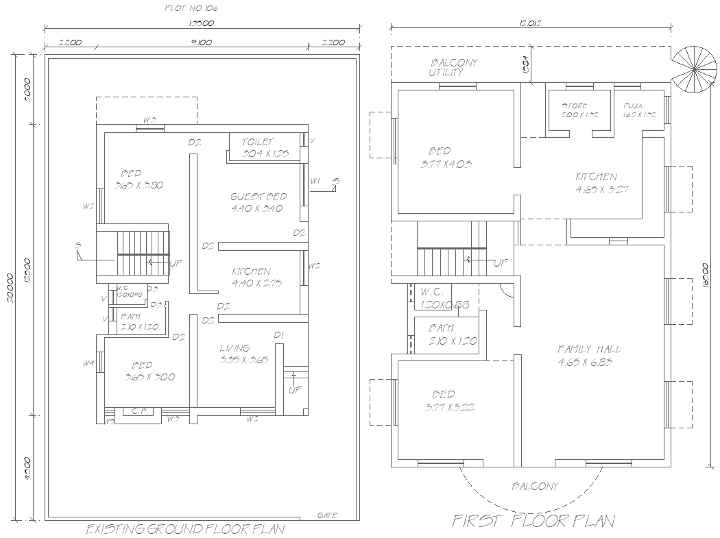
Explore a detailed 9.1m x 12.5m house plan, offering both ground and first floors in a fully editable AutoCAD DWG file. This design includes 5 spacious bedrooms, each with attached washrooms, providing convenience and privacy. A well-laid-out living hall, modern kitchen, balcony, and puja room are also part of the plan. For additional storage needs, a storage room is provided, while a family hall on the first floor creates a cozy space for gatherings. The balcony offers outdoor views and natural light. This comprehensive plan is perfect for families looking for a functional and elegant home design. Download the DWG file to view or customize it to fit your requirements.

Uploaded by:
Eiz
Luna

