20x40ft 6BHK AutoCAD House Plan Layout Design DWG File
Description
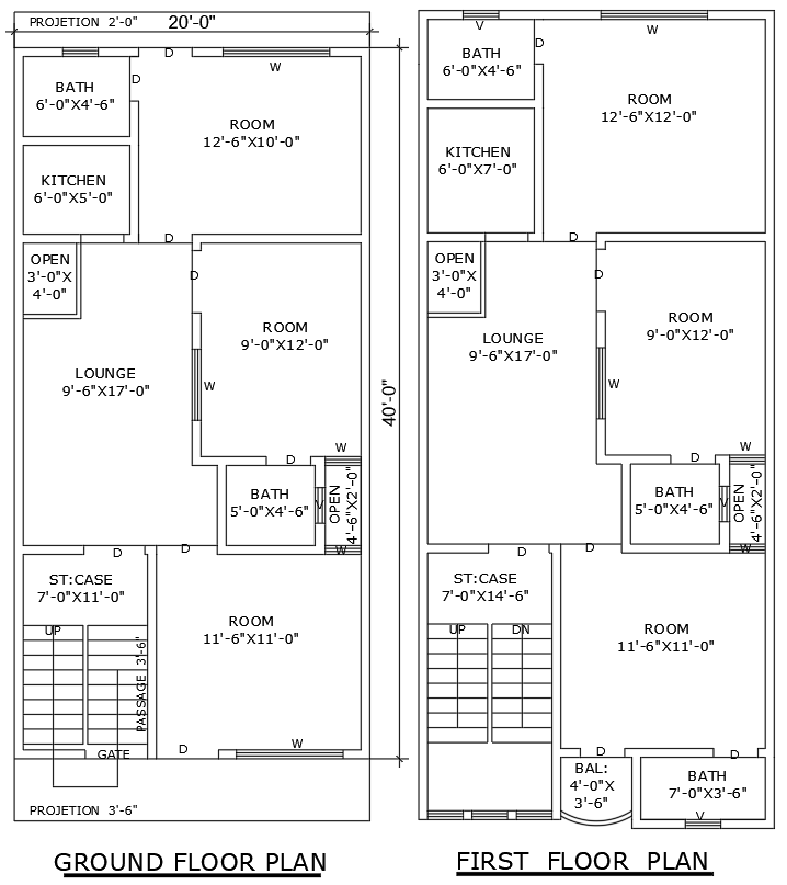
Explore this spacious 6BHK house plan layout designed for both ground and first floors in a 20ft x 40ft space. The AutoCAD DWG file includes six bedrooms, well-planned bathrooms, a functional kitchen, a cozy lounge, an open-to-sky area for natural light, and a relaxing balcony. Each room is designed for maximum space utilization and comfort, making it perfect for large families or those who need extra living spaces. The plan ensures a seamless flow between rooms, combining practicality with aesthetic design. Whether you're building your dream home or looking for inspiration, this detailed layout offers everything you need. Download the AutoCAD file now to get started with your construction project.

Uploaded by:
Eiz
Luna

