7x15.25m AutoCAD Shop and House Floor Plan in DWG File
Description
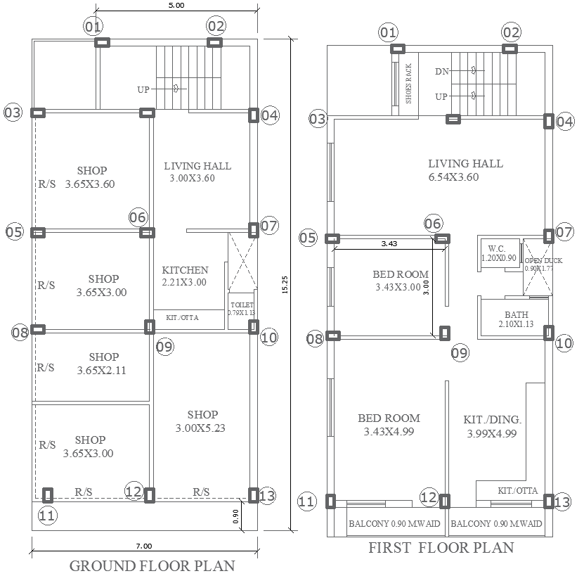
Explore a versatile 7m x 15.25m layout featuring a ground floor shop plan and a first floor house plan, designed for modern living and business. The ground floor provides an efficient retail space ideal for various businesses, while the first floor boasts a well-appointed residence with two spacious bedrooms, a modern kitchen, and a cozy living hall. The layout also includes a bathroom, a balcony for outdoor relaxation, and an open-to-sky area that enhances natural light and ventilation. Included is an AutoCAD DWG file for easy customization, allowing you to adapt the design to your specific needs. This combined layout is perfect for entrepreneurs and families seeking functionality and comfort in one space.

Uploaded by:
Eiz
Luna

