7.35x15.25m AutoCAD House and Shop Plan DWG Layout
Description
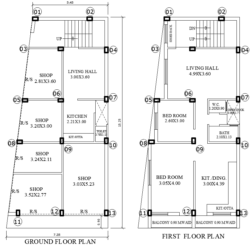
Explore a well-designed 7.35m x 15.25m layout that combines a functional house and shop in one space. This design features both ground and first-floor plans, providing a seamless blend of residential and commercial functionality. The layout includes a modern kitchen, a bathroom, and two spacious bedrooms, ensuring comfort for the occupants. The living hall serves as a cozy gathering space, while a balcony offers an outdoor escape for relaxation. Additionally, an open-to-sky area enhances natural light and ventilation throughout the home. The included AutoCAD DWG file allows for easy customization, making it perfect for families and entrepreneurs looking to optimize their living and working environment.

Uploaded by:
Eiz
Luna

