33ftx57ft 4BHK House Plan with Shop Ground Floor DWG File
Description
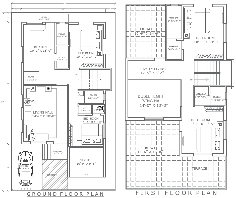
Discover a 33ft x 57ft 4BHK house plan with an integrated shop design, covering both the ground and first floors. This AutoCAD DWG file includes four spacious bedrooms, a living hall, a modern kitchen, multiple bathrooms, a pooja room, and a dedicated dress-up area. Outdoor features like a terrace, garden, and parking area add to the convenience. The layout also includes a shop, making it ideal for homeowners who want a combined residential and commercial space. With a well-planned flow between rooms and spaces, this design balances functionality and aesthetics. Download this detailed AutoCAD DWG file now to begin planning your dream home and business setup.

Uploaded by:
Eiz
Luna

