45x41Feet House Floor Plan AutoCAD Drawing for Design
Description
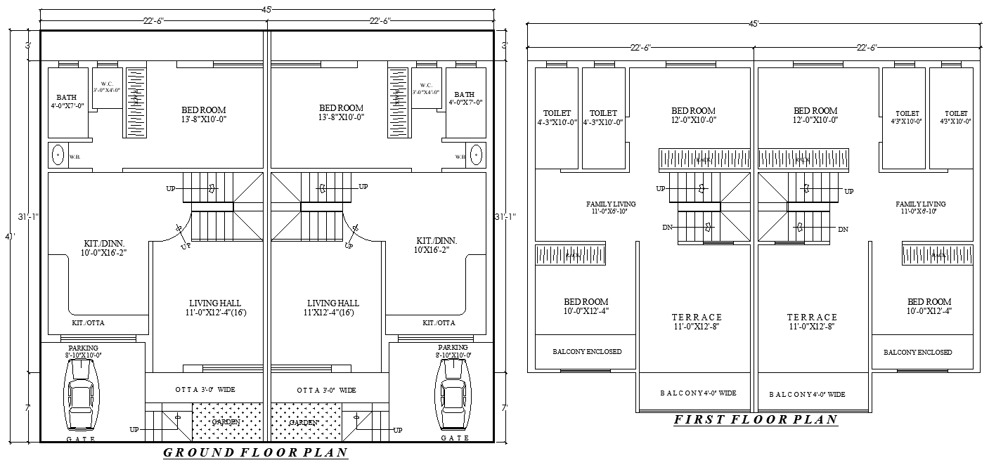
Explore this comprehensive 45ft x 41ft house plan featuring both ground and first floors. The layout includes two spacious bedrooms with attached washrooms, two well-designed living rooms, two modern kitchens with dining areas, and parking for two cars. This house plan also offers two beautifully landscaped gardens, a terrace for relaxation, and a balcony with a scenic view. This AutoCAD DWG file is ideal for architects, designers, and homeowners looking to build or design a two-bedroom house with modern amenities and space efficiency. Download now to visualize your dream home and customize it to fit your needs.

Uploaded by:
Eiz
Luna

