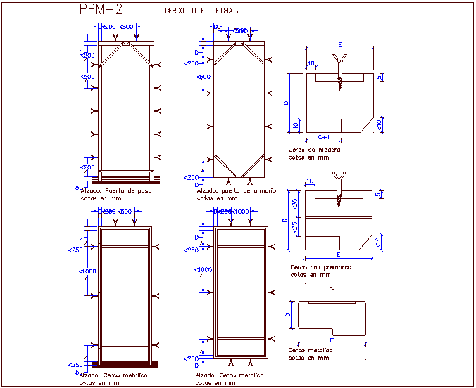
Step door design view with wooden frame design dwg file
Description
Step door design view with wooden frame design dwg file with view of door design and dimension view and frame view detail with dimension in view of door design.
File Type:
DWG
File Size:
36 KB
Category::
Dwg Cad Blocks
Sub Category::
Windows And Doors Dwg Blocks
type:
Gold
Uploaded by:

