20x40ft Office Dining Hall Interior AutoCAD CAD File
Description
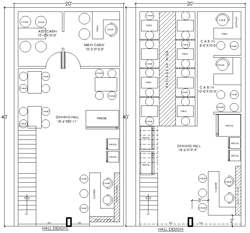
Explore our meticulously crafted interior design for a 20ft x 40ft office dining hall, optimized for both aesthetics and functionality. This design features a harmonious layout that includes essential elements such as comfortable chairs, stylish tables, a spacious cabin for storage, a modern fridge, and a functional counter. Our AutoCAD DWG file is included for easy implementation, making it perfect for architects, designers, or business owners looking to enhance their office dining space. Transform your workspace into a welcoming environment where employees can relax and recharge. Download the CAD file today and start creating a dining hall that reflects your unique style and meets your office needs.
File Type:
3d max
File Size:
1.5 MB
Category::
Interior Design
Sub Category::
Dining Area Interior
type:
Gold

Uploaded by:
Eiz
Luna

