87.3x91.11Ft 2BHK Ground Floor House Layout in DWG File
Description
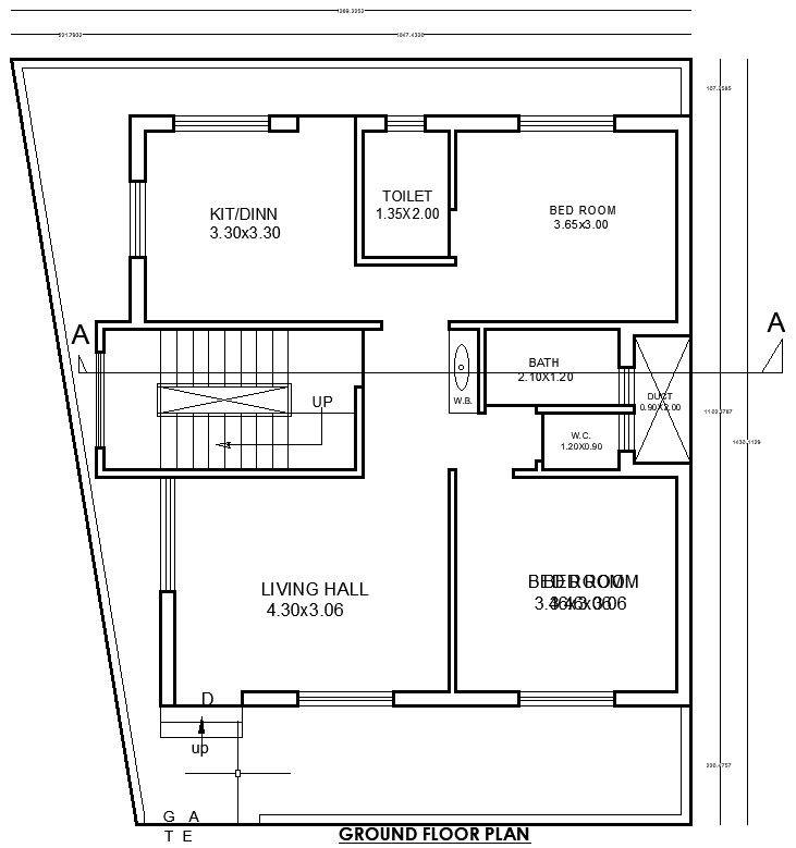
This 87.3ft x 91.11ft 2BHK ground floor house plan is available in AutoCAD DWG format and offers a spacious and functional layout. The design includes essential areas such as a large living hall, a well-planned kitchen, two comfortable bedrooms, and a modern bathroom. Additionally, it features an "open to sky" area for natural ventilation and outdoor light, enhancing the overall living experience. This plan is perfect for those seeking a balance between modern design and practicality. Ideal for homeowners, architects, and interior designers looking to create or modify residential spaces. Download the AutoCAD DWG file now to access the full house plan.

Uploaded by:
Eiz
Luna

