11.5x15m Two 1BHK Ground Floor House Layout Designs
Description
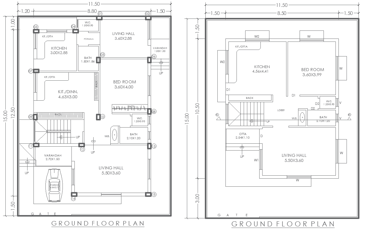
This AutoCAD DWG file offers two distinct 1BHK house plan layouts for a ground floor space measuring 11.50m x 15m. Each layout includes essential features such as a living hall, kitchen, bedroom, and dining area, providing practical and functional living spaces. Additional features include a verandah and designated parking area, ensuring comfort and convenience for small families or single occupants. Ideal for architects, builders, and homeowners looking for flexible house plan options. These layouts offer a perfect blend of space efficiency and style. Download the AutoCAD DWG file now to access these versatile 1BHK house designs for your next project.

Uploaded by:
Eiz
Luna

