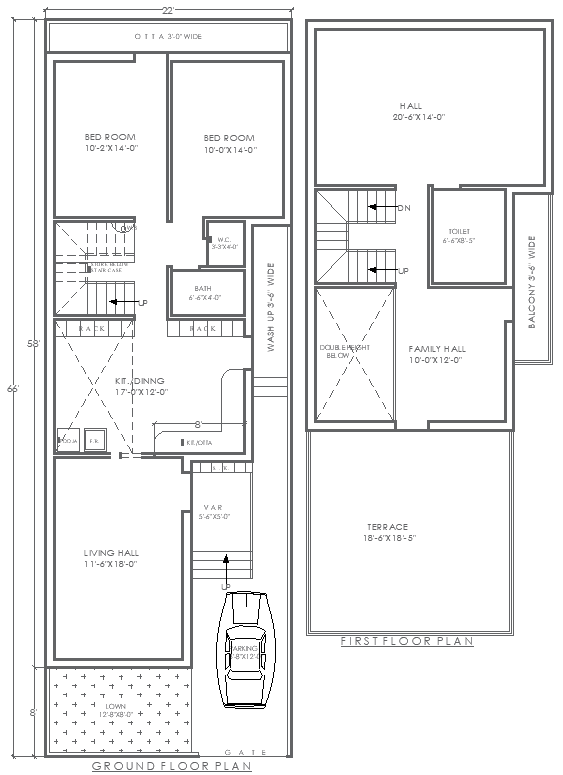
22ftx66ft 2BHK Ground and First Floor House Plan DWG Format
Description
This AutoCAD DWG file showcases a detailed 22ft x 66ft 2 BHK house plan with ground and first floors. The design includes two spacious bedrooms with attached washrooms, a comfortable living hall, a modern kitchen with dining space, and a parking area. The ground floor offers a lawn for outdoor activities, while the first floor features a terrace and a balcony for relaxation. This layout is perfect for families looking for efficient space utilization with a mix of comfort and style. Download this detailed DWG file to get the complete architectural layout, including furniture arrangements and structural dimensions.

Uploaded by:
Eiz
Luna

